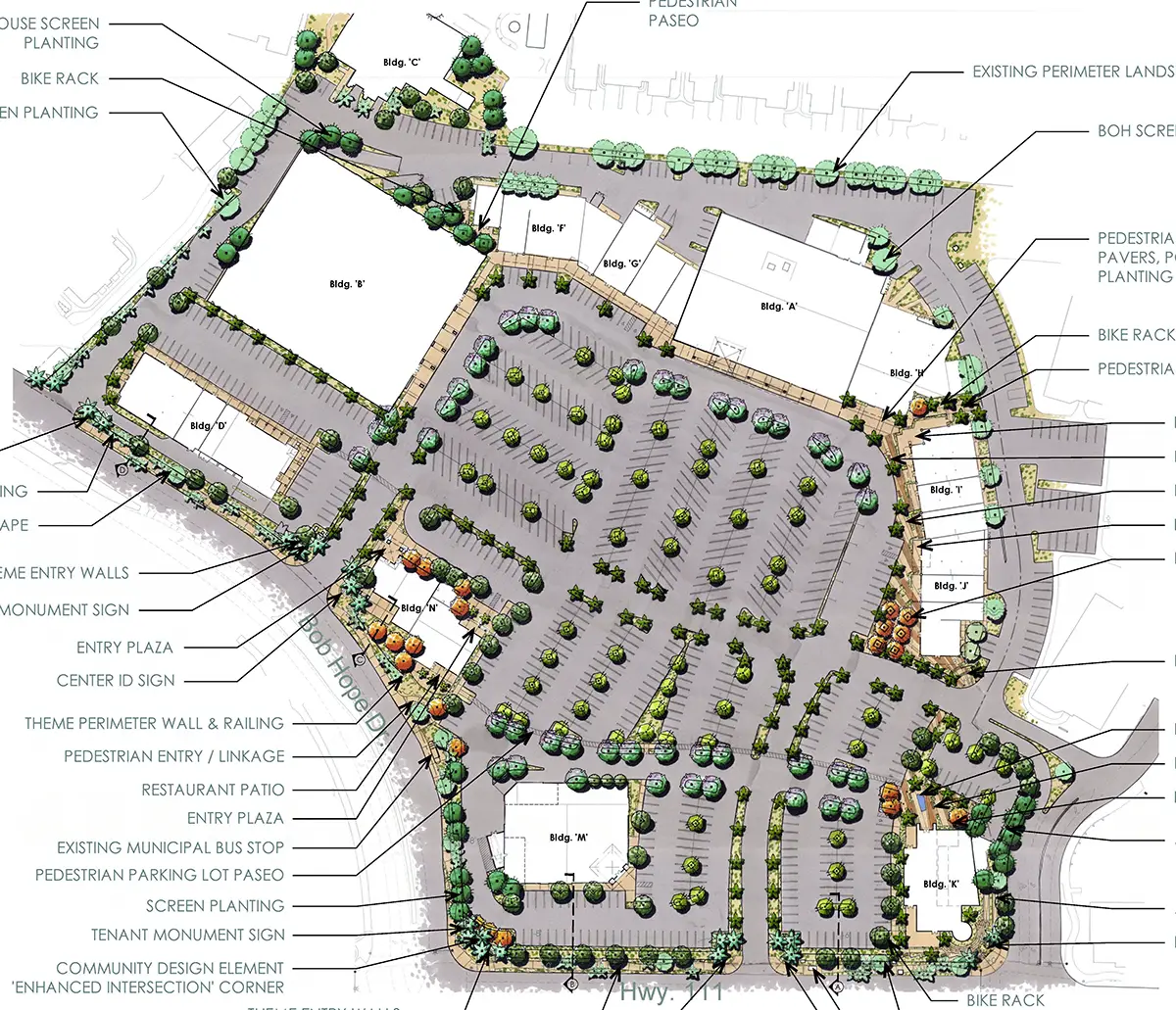
Rancho-Las-Palmas-Site-Plan

Rancho Las Palmas

Rancho Mirage, CA

Retail

Rancho Las Palmas is an existing 160,000 SF pharmacy-anchored shopping center located in Rancho Mirage, CA. The project entailed tenant coordination for the new retail and restaurant tenants.

On behalf of Paragon Commercial Group, the property owner and developer, Urban One provided limited tenant coordination services.

Rancho-Las-Palmas-Site-Plan

ClientParagon Commercial Group
LocationRancho Mirage, CA
Category/EmphasisReal Estate
ServicesTenant Coordination
Project FactsTenant coordination of an existing 160,000 square foot shopping center
DeveloperParagon Commercial Group
ArchitectArchitects Orange
Civil EngineerDRC Engineering
Landscape ArchitectLand Creative Inc.
General ContractorN/A
Signage ContractorN/A
Structural EngineerWright Engineers
Geotechnical EngineerN/A
Mechanical EngineerWright Engineers
Electrical EngineerWright Engineers
Plumbing EngineerWright Engineers
Dry Utility ConsultantN/A
Testing & InspectionsN/A


		[{"id":5620,"link":"https:\/\/urbanone.com\/project\/usc-village","name":"usc-village","thumbnail":{"url":"https:\/\/urbanone.com\/wp-content\/uploads\/2025\/11\/USC.jpg","alt":"USC Village"},"title":"USC Village","postMeta":{"_edit_lock":["1762706608:2"],"_thumbnail_id":["5621"],"_elementor_edit_mode":[""],"_elementor_template_type":[""],"_elementor_data":[""],"_edit_last":["2"],"subtitle":["Los Angeles, CA"],"_subtitle":["field_682d5eff2112f"],"project_summary":["<table cellspacing=\"0\" cellpadding=\"6\" width=\"100%\"><tbody>\r\n<tr valign=\"middle\" bgcolor=\"#e8ebee\">\r\n  <td style=\"width:300px; min-width:300px;\"><strong><em>Client<\/em><\/strong><\/td>\r\n  <td><a href=\"https:\/\/www.paragoncommercialgroup.com\/\" target=\"_blank\" rel=\"nofollow noopener\">Paragon Commercial Group<\/a><\/td>\r\n<\/tr>\r\n<tr valign=\"middle\">\r\n  <td style=\"width:300px; min-width:300px;\"><strong><em>Location<\/em><\/strong><\/td>\r\n  <td><a href=\"https:\/\/www.uscvillage.com\/\" target=\"_blank\" rel=\"nofollow noopener\">USC Village, Los Angeles, CA<\/a><\/td>\r\n<\/tr>\r\n<tr valign=\"middle\" bgcolor=\"#e8ebee\">\r\n  <td style=\"width:300px; min-width:300px;\"><strong><em>Category\/Emphasis<\/em><\/strong><\/td>\r\n  <td>Real Estate<\/td>\r\n<\/tr>\r\n<tr valign=\"middle\">\r\n  <td style=\"width:300px; min-width:300px;\"><strong><em>Services<\/em><\/strong><\/td>\r\n  <td>Tenant Coordination<\/td>\r\n<\/tr>\r\n<tr valign=\"middle\" bgcolor=\"#e8ebee\">\r\n  <td style=\"width:300px; min-width:300px;\"><strong><em>Project Facts<\/em><\/strong><\/td>\r\n  <td>Tenant coordination for new ground-floor retail and restaurant tenants within a new student housing mixed-use development.<\/td>\r\n<\/tr>\r\n<tr valign=\"middle\">\r\n  <td style=\"width:300px; min-width:300px;\"><strong><em>Developer<\/em><\/strong><\/td>\r\n  <td>\r\n    <a href=\"https:\/\/www.paragoncommercialgroup.com\/\" target=\"_blank\" rel=\"nofollow noopener\">Paragon Commercial Group<\/a>, and\r\n    <a href=\"https:\/\/fpm.usc.edu\/real-estate\/\" target=\"_blank\" rel=\"nofollow noopener\">University of Southern California \u2013 Real Estate & Asset Management<\/a>\r\n  <\/td>\r\n<\/tr>\r\n<tr valign=\"middle\" bgcolor=\"#e8ebee\">\r\n  <td style=\"width:300px; min-width:300px;\"><strong><em>Architect<\/em><\/strong><\/td>\r\n  <td><a href=\"https:\/\/mmaarchitecture.com\/\" target=\"_blank\" rel=\"nofollow noopener\">MMA Architecture<\/a><\/td>\r\n<\/tr>\r\n<tr valign=\"middle\">\r\n  <td style=\"width:300px; min-width:300px;\"><strong><em>Civil Engineer<\/em><\/strong><\/td>\r\n  <td>N\/A<\/td>\r\n<\/tr>\r\n<tr valign=\"middle\" bgcolor=\"#e8ebee\">\r\n  <td style=\"width:300px; min-width:300px;\"><strong><em>Landscape Architect<\/em><\/strong><\/td>\r\n  <td>N\/A<\/td>\r\n<\/tr>\r\n<tr valign=\"middle\">\r\n  <td style=\"width:300px; min-width:300px;\"><strong><em>General Contractor<\/em><\/strong><\/td>\r\n  <td>N\/A<\/td>\r\n<\/tr>\r\n<tr valign=\"middle\" bgcolor=\"#e8ebee\">\r\n  <td style=\"width:300px; min-width:300px;\"><strong><em>Signage Contractor<\/em><\/strong><\/td>\r\n  <td>N\/A<\/td>\r\n<\/tr>\r\n<tr valign=\"middle\">\r\n  <td style=\"width:300px; min-width:300px;\"><strong><em>Structural Engineer<\/em><\/strong><\/td>\r\n  <td>N\/A<\/td>\r\n<\/tr>\r\n<tr valign=\"middle\" bgcolor=\"#e8ebee\">\r\n  <td style=\"width:300px; min-width:300px;\"><strong><em>Geotechnical Engineer<\/em><\/strong><\/td>\r\n  <td>N\/A<\/td>\r\n<\/tr>\r\n<tr valign=\"middle\">\r\n  <td style=\"width:300px; min-width:300px;\"><strong><em>Mechanical Engineer<\/em><\/strong><\/td>\r\n  <td><a href=\"https:\/\/www.jaycocal.com\/index.html\" target=\"_blank\" rel=\"nofollow noopener\">Jaycocal Engineering<\/a><\/td>\r\n<\/tr>\r\n<tr valign=\"middle\" bgcolor=\"#e8ebee\">\r\n  <td style=\"width:300px; min-width:300px;\"><strong><em>Electrical Engineer<\/em><\/strong><\/td>\r\n  <td>SouthWest Group<\/td>\r\n<\/tr>\r\n<tr valign=\"middle\">\r\n  <td style=\"width:300px; min-width:300px;\"><strong><em>Plumbing Engineer<\/em><\/strong><\/td>\r\n  <td><a href=\"https:\/\/www.jaycocal.com\/index.html\" target=\"_blank\" rel=\"nofollow noopener\">Jaycocal Engineering<\/a><\/td>\r\n<\/tr>\r\n<tr valign=\"middle\" bgcolor=\"#e8ebee\">\r\n  <td style=\"width:300px; min-width:300px;\"><strong><em>Dry Utility Consultant<\/em><\/strong><\/td>\r\n  <td>N\/A<\/td>\r\n<\/tr>\r\n<tr valign=\"middle\">\r\n  <td style=\"width:300px; min-width:300px;\"><strong><em>Testing & Inspections<\/em><\/strong><\/td>\r\n  <td>N\/A<\/td>\r\n<\/tr>\r\n<\/tbody><\/table>\r\n"],"_project_summary":["field_6834b6f319d51"],"_yoast_wpseo_primary_category":[""],"_yoast_wpseo_primary_project-types":[""],"_yoast_wpseo_metadesc":["USC Village was a student housing, retail and restaurant mixed-use development located adjacent to the University of Southern California (USC) campus, located in Los Angeles, CA."],"_yoast_wpseo_content_score":["90"],"_yoast_wpseo_estimated-reading-time-minutes":["1"],"_wp_page_template":["default"]},"author":{"name":"JR Riddle","link":"https:\/\/urbanone.com\/blog\/author\/jr"},"date":"Nov 4, 2025","dateGMT":"2025-11-04 20:54:01","modifiedDate":"2025-11-04 20:54:11","modifiedDateGMT":"2025-11-04 20:54:11","commentCount":"0","commentStatus":"closed","categories":{"coma":"Uncategorized","space":"Uncategorized"},"taxonomies":{"post_tag":"","project-types":"<a href='https:\/\/urbanone.com\/blog\/project-types\/retail' rel='project-types'>Retail<\/a>"},"readTime":{"min":0,"sec":24},"status":"publish","excerpt":"USC Village was a student housing, retail and restaurant mixed-use development located adjacent to the University of Southern California (USC) campus, located in Los Angeles, CA."},{"id":5617,"link":"https:\/\/urbanone.com\/project\/the-ranch","name":"the-ranch","thumbnail":{"url":"https:\/\/urbanone.com\/wp-content\/uploads\/2025\/11\/The-Ranch.jpg","alt":"The Ranch"},"title":"The Ranch","postMeta":{"_edit_lock":["1762709490:2"],"_thumbnail_id":["5618"],"_elementor_edit_mode":[""],"_elementor_template_type":[""],"_elementor_data":[""],"_edit_last":["2"],"subtitle":["Burbank, CA. "],"_subtitle":["field_682d5eff2112f"],"project_summary":["<table cellspacing=\"0\" cellpadding=\"6\" width=\"100%\"><tbody>\r\n<tr valign=\"middle\" bgcolor=\"#e8ebee\">\r\n  <td style=\"width:300px; min-width:300px;\"><strong><em>Client<\/em><\/strong><\/td>\r\n  <td><a href=\"https:\/\/balboaretail.com\/\" target=\"_blank\" rel=\"nofollow noopener\">Balboa Retail Partners<\/a><\/td>\r\n<\/tr>\r\n<tr valign=\"middle\">\r\n  <td style=\"width:300px; min-width:300px;\"><strong><em>Location<\/em><\/strong><\/td>\r\n  <td><a href=\"https:\/\/en.wikipedia.org\/wiki\/Burbank,_California\" target=\"_blank\" rel=\"nofollow noopener\">Burbank, CA<\/a><\/td>\r\n<\/tr>\r\n<tr valign=\"middle\" bgcolor=\"#e8ebee\">\r\n  <td style=\"width:300px; min-width:300px;\"><strong><em>Category\/Emphasis<\/em><\/strong><\/td>\r\n  <td>Real Estate<\/td>\r\n<\/tr>\r\n<tr valign=\"middle\">\r\n  <td style=\"width:300px; min-width:300px;\"><strong><em>Services<\/em><\/strong><\/td>\r\n  <td>\r\n    <a href=\"https:\/\/urbanone.com\/services\/planning-development\">Planning & Development<\/a><br>\r\n    <a href=\"https:\/\/urbanone.com\/services\/construction-oversight\">Construction Oversight<\/a>\r\n  <\/td>\r\n<\/tr>\r\n<tr valign=\"middle\" bgcolor=\"#e8ebee\">\r\n  <td style=\"width:300px; min-width:300px;\"><strong><em>Project Facts<\/em><\/strong><\/td>\r\n  <td>Facade and site improvements of an existing 86,000 square foot shopping center.<\/td>\r\n<\/tr>\r\n<tr valign=\"middle\">\r\n  <td style=\"width:300px; min-width:300px;\"><strong><em>Developer<\/em><\/strong><\/td>\r\n  <td><a href=\"https:\/\/balboaretail.com\/\" target=\"_blank\" rel=\"nofollow noopener\">Balboa Retail Partners<\/a><\/td>\r\n<\/tr>\r\n<tr valign=\"middle\" bgcolor=\"#e8ebee\">\r\n  <td style=\"width:300px; min-width:300px;\"><strong><em>Architect<\/em><\/strong><\/td>\r\n  <td><a href=\"https:\/\/rdcollaborative.com\/\" target=\"_blank\" rel=\"nofollow noopener\">Retail Design Collaborative (RDC)<\/a><\/td>\r\n<\/tr>\r\n<tr valign=\"middle\">\r\n  <td style=\"width:300px; min-width:300px;\"><strong><em>Civil Engineer<\/em><\/strong><\/td>\r\n  <td><a href=\"https:\/\/www.bkf.com\/\" target=\"_blank\" rel=\"nofollow noopener\">BKF Engineers<\/a><\/td>\r\n<\/tr>\r\n<tr valign=\"middle\" bgcolor=\"#e8ebee\">\r\n  <td style=\"width:300px; min-width:300px;\"><strong><em>Landscape Architect<\/em><\/strong><\/td>\r\n  <td><a href=\"https:\/\/studiofive-design.com\/\" target=\"_blank\" rel=\"nofollow noopener\">Studio Five<\/a><\/td>\r\n<\/tr>\r\n<tr valign=\"middle\">\r\n  <td style=\"width:300px; min-width:300px;\"><strong><em>General Contractor<\/em><\/strong><\/td>\r\n  <td><a href=\"https:\/\/edgrush.com\/\" target=\"_blank\" rel=\"nofollow noopener\">Ed Grush General Contractor<\/a><\/td>\r\n<\/tr>\r\n<tr valign=\"middle\" bgcolor=\"#e8ebee\">\r\n  <td style=\"width:300px; min-width:300px;\"><strong><em>Signage Contractor<\/em><\/strong><\/td>\r\n  <td><a href=\"https:\/\/ad-s.com\/\" target=\"_blank\" rel=\"nofollow noopener\">AD\/S<\/a><\/td>\r\n<\/tr>\r\n<tr valign=\"middle\">\r\n  <td style=\"width:300px; min-width:300px;\"><strong><em>Structural Engineer<\/em><\/strong><\/td>\r\n  <td>ANF & Associates<\/td>\r\n<\/tr>\r\n<tr valign=\"middle\" bgcolor=\"#e8ebee\">\r\n  <td style=\"width:300px; min-width:300px;\"><strong><em>Geotechnical Engineer<\/em><\/strong><\/td>\r\n  <td><a href=\"https:\/\/www.krazan.com\/site\/\" target=\"_blank\" rel=\"nofollow noopener\">Krazan & Associates<\/a><\/td>\r\n<\/tr>\r\n<tr valign=\"middle\">\r\n  <td style=\"width:300px; min-width:300px;\"><strong><em>Mechanical Engineer<\/em><\/strong><\/td>\r\n  <td><a href=\"https:\/\/engineousgroup.com\/\" target=\"_blank\" rel=\"nofollow noopener\">Engineous Group Inc.<\/a><\/td>\r\n<\/tr>\r\n<tr valign=\"middle\" bgcolor=\"#e8ebee\">\r\n  <td style=\"width:300px; min-width:300px;\"><strong><em>Electrical Engineer<\/em><\/strong><\/td>\r\n  <td><a href=\"https:\/\/www.ide-designs.com\/home\" target=\"_blank\" rel=\"nofollow noopener\">Innovative Design Engineers<\/a><\/td>\r\n<\/tr>\r\n<tr valign=\"middle\">\r\n  <td style=\"width:300px; min-width:300px;\"><strong><em>Plumbing Engineer<\/em><\/strong><\/td>\r\n  <td>Mechanical Building Systems Engineering<\/td>\r\n<\/tr>\r\n<tr valign=\"middle\" bgcolor=\"#e8ebee\">\r\n  <td style=\"width:300px; min-width:300px;\"><strong><em>Dry Utility Consultant<\/em><\/strong><\/td>\r\n  <td><a href=\"https:\/\/dryutility.com\/\" target=\"_blank\" rel=\"nofollow noopener\">RGI Utility Consultants<\/a><\/td>\r\n<\/tr>\r\n<tr valign=\"middle\">\r\n  <td style=\"width:300px; min-width:300px;\"><strong><em>Testing & Inspections<\/em><\/strong><\/td>\r\n  <td><a href=\"https:\/\/www.krazan.com\/site\/\" target=\"_blank\" rel=\"nofollow noopener\">Krazan & Associates<\/a><\/td>\r\n<\/tr>\r\n<\/tbody><\/table>\r\n"],"_project_summary":["field_6834b6f319d51"],"_yoast_wpseo_primary_category":[""],"_yoast_wpseo_primary_project-types":["169"],"_yoast_wpseo_metadesc":["The Ranch @ Hollywood & Verdugo is an existing 86,000 SF grocery and pharmacy-anchored shopping center located in Burbank, CA."],"_yoast_wpseo_content_score":["90"],"_yoast_wpseo_estimated-reading-time-minutes":["1"],"_wp_page_template":["default"]},"author":{"name":"JR Riddle","link":"https:\/\/urbanone.com\/blog\/author\/jr"},"date":"Nov 4, 2025","dateGMT":"2025-11-04 20:51:38","modifiedDate":"2025-11-04 20:51:45","modifiedDateGMT":"2025-11-04 20:51:45","commentCount":"0","commentStatus":"closed","categories":{"coma":"Uncategorized","space":"Uncategorized"},"taxonomies":{"post_tag":"","project-types":"<a href='https:\/\/urbanone.com\/blog\/project-types\/retail' rel='project-types'>Retail<\/a>"},"readTime":{"min":0,"sec":21},"status":"publish","excerpt":"The Ranch @ Hollywood & Verdugo is an existing 86,000 SF grocery and pharmacy-anchored shopping center located in Burbank, CA."},{"id":5614,"link":"https:\/\/urbanone.com\/project\/san-ysidro-village","name":"san-ysidro-village","thumbnail":{"url":"https:\/\/urbanone.com\/wp-content\/uploads\/2025\/11\/El-Super-Photo.webp","alt":"San Ysidro Village"},"title":"San Ysidro Village","postMeta":{"_edit_lock":["1762289272:2"],"_thumbnail_id":["5615"],"_elementor_edit_mode":[""],"_elementor_template_type":[""],"_elementor_data":[""],"_edit_last":["2"],"subtitle":["Sunnyvale, CA"],"_subtitle":["field_682d5eff2112f"],"project_summary":["<table cellspacing=\"0\" cellpadding=\"6\" width=\"100%\"><tbody>\r\n<tr valign=\"middle\" bgcolor=\"#e8ebee\">\r\n  <td style=\"width:300px; min-width:300px;\"><strong><em>Client<\/em><\/strong><\/td>\r\n  <td><a href=\"https:\/\/balboaretail.com\/\" target=\"_blank\" rel=\"nofollow noopener\">Balboa Retail Partners<\/a><\/td>\r\n<\/tr>\r\n<tr valign=\"middle\">\r\n  <td style=\"width:300px; min-width:300px;\"><strong><em>Location<\/em><\/strong><\/td>\r\n  <td><a href=\"https:\/\/en.wikipedia.org\/wiki\/San_Ysidro,_San_Diego\" target=\"_blank\" rel=\"nofollow noopener\">San Ysidro, San Diego, CA<\/a><\/td>\r\n<\/tr>\r\n<tr valign=\"middle\" bgcolor=\"#e8ebee\">\r\n  <td style=\"width:300px; min-width:300px;\"><strong><em>Category\/Emphasis<\/em><\/strong><\/td>\r\n  <td>Real Estate<\/td>\r\n<\/tr>\r\n<tr valign=\"middle\">\r\n  <td style=\"width:300px; min-width:300px;\"><strong><em>Services<\/em><\/strong><\/td>\r\n  <td>\r\n    <a href=\"https:\/\/urbanone.com\/services\/planning-development\">Planning & Development<\/a><br>\r\n    <a href=\"https:\/\/urbanone.com\/services\/construction-oversight\">Construction Oversight<\/a>\r\n  <\/td>\r\n<\/tr>\r\n<tr valign=\"middle\" bgcolor=\"#e8ebee\">\r\n  <td style=\"width:300px; min-width:300px;\"><strong><em>Project Facts<\/em><\/strong><\/td>\r\n  <td>Landlord work for new anchor tenant and site improvements of an existing 87,000 square foot shopping center.<\/td>\r\n<\/tr>\r\n<tr valign=\"middle\">\r\n  <td style=\"width:300px; min-width:300px;\"><strong><em>Developer<\/em><\/strong><\/td>\r\n  <td><a href=\"https:\/\/balboaretail.com\/\" target=\"_blank\" rel=\"nofollow noopener\">Balboa Retail Partners<\/a><\/td>\r\n<\/tr>\r\n<tr valign=\"middle\" bgcolor=\"#e8ebee\">\r\n  <td style=\"width:300px; min-width:300px;\"><strong><em>Architect<\/em><\/strong><\/td>\r\n  <td><a href=\"https:\/\/davidhidalgoarchitects.com\/\" target=\"_blank\" rel=\"nofollow noopener\">David Hidalgo Architects<\/a><\/td>\r\n<\/tr>\r\n<tr valign=\"middle\">\r\n  <td style=\"width:300px; min-width:300px;\"><strong><em>Civil Engineer<\/em><\/strong><\/td>\r\n  <td><a href=\"https:\/\/ceieng.com\/\" target=\"_blank\" rel=\"nofollow noopener\">CEI Engineering Associates<\/a><\/td>\r\n<\/tr>\r\n<tr valign=\"middle\" bgcolor=\"#e8ebee\">\r\n  <td style=\"width:300px; min-width:300px;\"><strong><em>Landscape Architect<\/em><\/strong><\/td>\r\n  <td>Landarq, Inc.<\/td>\r\n<\/tr>\r\n<tr valign=\"middle\">\r\n  <td style=\"width:300px; min-width:300px;\"><strong><em>General Contractor<\/em><\/strong><\/td>\r\n  <td><a href=\"https:\/\/www.culpco.com\/\" target=\"_blank\" rel=\"nofollow noopener\">Culp Construction Company<\/a><\/td>\r\n<\/tr>\r\n<tr valign=\"middle\" bgcolor=\"#e8ebee\">\r\n  <td style=\"width:300px; min-width:300px;\"><strong><em>Signage Contractor<\/em><\/strong><\/td>\r\n  <td><a href=\"https:\/\/www.jonessign.com\/\" target=\"_blank\" rel=\"nofollow noopener\">Jones Sign Company<\/a><\/td>\r\n<\/tr>\r\n<tr valign=\"middle\">\r\n  <td style=\"width:300px; min-width:300px;\"><strong><em>Structural Engineer<\/em><\/strong><\/td>\r\n  <td><a href=\"https:\/\/thanglese.com\/\" target=\"_blank\" rel=\"nofollow noopener\">Thang Le & Associates<\/a><\/td>\r\n<\/tr>\r\n<tr valign=\"middle\" bgcolor=\"#e8ebee\">\r\n  <td style=\"width:300px; min-width:300px;\"><strong><em>Geotechnical Engineer<\/em><\/strong><\/td>\r\n  <td><a href=\"https:\/\/www.verdantas.com\/\" target=\"_blank\" rel=\"nofollow noopener\">Leighton Group<\/a><\/td>\r\n<\/tr>\r\n<tr valign=\"middle\">\r\n  <td style=\"width:300px; min-width:300px;\"><strong><em>Mechanical Engineer<\/em><\/strong><\/td>\r\n  <td><a href=\"https:\/\/www.savantengineering.com\/\" target=\"_blank\" rel=\"nofollow noopener\">Savant Engineering<\/a><\/td>\r\n<\/tr>\r\n<tr valign=\"middle\" bgcolor=\"#e8ebee\">\r\n  <td style=\"width:300px; min-width:300px;\"><strong><em>Electrical Engineer<\/em><\/strong><\/td>\r\n  <td><a href=\"https:\/\/www.savantengineering.com\/\" target=\"_blank\" rel=\"nofollow noopener\">Savant Engineering<\/a><\/td>\r\n<\/tr>\r\n<tr valign=\"middle\">\r\n  <td style=\"width:300px; min-width:300px;\"><strong><em>Plumbing Engineer<\/em><\/strong><\/td>\r\n  <td><a href=\"https:\/\/www.savantengineering.com\/\" target=\"_blank\" rel=\"nofollow noopener\">Savant Engineering<\/a><\/td>\r\n<\/tr>\r\n<tr valign=\"middle\" bgcolor=\"#e8ebee\">\r\n  <td style=\"width:300px; min-width:300px;\"><strong><em>Dry Utility Consultant<\/em><\/strong><\/td>\r\n  <td><a href=\"https:\/\/endeconinc.com\/\" target=\"_blank\" rel=\"nofollow noopener\">Endecon Inc.<\/a><\/td>\r\n<\/tr>\r\n<tr valign=\"middle\">\r\n  <td style=\"width:300px; min-width:300px;\"><strong><em>Testing & Inspections<\/em><\/strong><\/td>\r\n  <td><a href=\"https:\/\/www.dicknigrainspections.com\/\" target=\"_blank\" rel=\"nofollow noopener\">Dick Nigra Inspections<\/a><\/td>\r\n<\/tr>\r\n<\/tbody><\/table>\r\n"],"_project_summary":["field_6834b6f319d51"],"_yoast_wpseo_primary_category":[""],"_yoast_wpseo_primary_project-types":["169"],"_yoast_wpseo_metadesc":["San Ysidro Village is an existing 87,000 SF grocery-anchored shopping center located in Sunnyvale, CA."],"_yoast_wpseo_content_score":["90"],"_yoast_wpseo_estimated-reading-time-minutes":["1"],"_wp_page_template":["default"]},"author":{"name":"JR Riddle","link":"https:\/\/urbanone.com\/blog\/author\/jr"},"date":"Nov 4, 2025","dateGMT":"2025-11-04 20:47:40","modifiedDate":"2025-11-04 20:47:48","modifiedDateGMT":"2025-11-04 20:47:48","commentCount":"0","commentStatus":"closed","categories":{"coma":"Uncategorized","space":"Uncategorized"},"taxonomies":{"post_tag":"","project-types":"<a href='https:\/\/urbanone.com\/blog\/project-types\/retail' rel='project-types'>Retail<\/a>"},"readTime":{"min":0,"sec":19},"status":"publish","excerpt":"San Ysidro Village is an existing 87,000 SF grocery-anchored shopping center located in Sunnyvale, CA."},{"id":5610,"link":"https:\/\/urbanone.com\/project\/mission-hills","name":"mission-hills","thumbnail":{"url":"https:\/\/urbanone.com\/wp-content\/uploads\/2025\/11\/MISSION-HILLS.jpg","alt":"MISSION HILLS"},"title":"Mission Hills","postMeta":{"_edit_lock":["1762289050:2"],"_edit_last":["2"],"subtitle":["Los Angeles, CA"],"_subtitle":["field_682d5eff2112f"],"project_summary":["<table cellspacing=\"0\" cellpadding=\"6\" width=\"100%\"><tbody>\r\n<tr valign=\"middle\" bgcolor=\"#e8ebee\">\r\n  <td style=\"width:300px; min-width:300px;\"><strong><em>Client<\/em><\/strong><\/td>\r\n  <td><a href=\"https:\/\/balboaretail.com\/\" target=\"_blank\" rel=\"nofollow noopener\">Balboa Retail Partners<\/a><\/td>\r\n<\/tr>\r\n<tr valign=\"middle\">\r\n  <td style=\"width:300px; min-width:300px;\"><strong><em>Location<\/em><\/strong><\/td>\r\n  <td><a href=\"https:\/\/en.wikipedia.org\/wiki\/Mission_Hills,_Los_Angeles\" target=\"_blank\" rel=\"nofollow noopener\">Mission Hills, Los Angeles, CA<\/a><\/td>\r\n<\/tr>\r\n<tr valign=\"middle\" bgcolor=\"#e8ebee\">\r\n  <td style=\"width:300px; min-width:300px;\"><strong><em>Category\/Emphasis<\/em><\/strong><\/td>\r\n  <td>Real Estate<\/td>\r\n<\/tr>\r\n<tr valign=\"middle\">\r\n  <td style=\"width:300px; min-width:300px;\"><strong><em>Services<\/em><\/strong><\/td>\r\n  <td><a href=\"https:\/\/urbanone.com\/services\/construction-oversight\">Construction Oversight<\/a><\/td>\r\n<\/tr>\r\n<tr valign=\"middle\" bgcolor=\"#e8ebee\">\r\n  <td style=\"width:300px; min-width:300px;\"><strong><em>Project Facts<\/em><\/strong><\/td>\r\n  <td>Fa\u00e7ade & site improvements of an existing 82,000 square foot shopping center.<\/td>\r\n<\/tr>\r\n<tr valign=\"middle\">\r\n  <td style=\"width:300px; min-width:300px;\"><strong><em>Developer<\/em><\/strong><\/td>\r\n  <td><a href=\"https:\/\/balboaretail.com\/\" target=\"_blank\" rel=\"nofollow noopener\">Balboa Retail Partners<\/a><\/td>\r\n<\/tr>\r\n<tr valign=\"middle\" bgcolor=\"#e8ebee\">\r\n  <td style=\"width:300px; min-width:300px;\"><strong><em>Architect<\/em><\/strong><\/td>\r\n  <td><a href=\"https:\/\/mmaarchitecture.com\/\" target=\"_blank\" rel=\"nofollow noopener\">MMA Architecture<\/a><\/td>\r\n<\/tr>\r\n<tr valign=\"middle\">\r\n  <td style=\"width:300px; min-width:300px;\"><strong><em>Civil Engineer<\/em><\/strong><\/td>\r\n  <td><a href=\"https:\/\/www.drc-eng.com\/\" target=\"_blank\" rel=\"nofollow noopener\">DRC Engineering<\/a><\/td>\r\n<\/tr>\r\n<tr valign=\"middle\" bgcolor=\"#e8ebee\">\r\n  <td style=\"width:300px; min-width:300px;\"><strong><em>Landscape Architect<\/em><\/strong><\/td>\r\n  <td><a href=\"http:\/\/www.trollermayer.info\/\" target=\"_blank\" rel=\"nofollow noopener\">Troller Mayer Associates<\/a><\/td>\r\n<\/tr>\r\n<tr valign=\"middle\">\r\n  <td style=\"width:300px; min-width:300px;\"><strong><em>General Contractor<\/em><\/strong><\/td>\r\n  <td><a href=\"https:\/\/www.bergmankprs.com\/\" target=\"_blank\" rel=\"nofollow noopener\">Bergman KPRS<\/a><\/td>\r\n<\/tr>\r\n<tr valign=\"middle\" bgcolor=\"#e8ebee\">\r\n  <td style=\"width:300px; min-width:300px;\"><strong><em>Signage Contractor<\/em><\/strong><\/td>\r\n  <td><a href=\"https:\/\/www.signsandservicesco.com\/\" target=\"_blank\" rel=\"nofollow noopener\">Signs & Services<\/a><\/td>\r\n<\/tr>\r\n<tr valign=\"middle\">\r\n  <td style=\"width:300px; min-width:300px;\"><strong><em>Structural Engineer<\/em><\/strong><\/td>\r\n  <td>ANF & Associates<\/td>\r\n<\/tr>\r\n<tr valign=\"middle\" bgcolor=\"#e8ebee\">\r\n  <td style=\"width:300px; min-width:300px;\"><strong><em>Geotechnical Engineer<\/em><\/strong><\/td>\r\n  <td><a href=\"https:\/\/www.gilesengr.com\/\" target=\"_blank\" rel=\"nofollow noopener\">Giles Engineering Associates<\/a><\/td>\r\n<\/tr>\r\n<tr valign=\"middle\">\r\n  <td style=\"width:300px; min-width:300px;\"><strong><em>Mechanical Engineer<\/em><\/strong><\/td>\r\n  <td><a href=\"https:\/\/www.jaycocal.com\/index.html\" target=\"_blank\" rel=\"nofollow noopener\">Jaycocal Engineering<\/a><\/td>\r\n<\/tr>\r\n<tr valign=\"middle\" bgcolor=\"#e8ebee\">\r\n  <td style=\"width:300px; min-width:300px;\"><strong><em>Electrical Engineer<\/em><\/strong><\/td>\r\n  <td><a href=\"https:\/\/ebs-la.com\/\" target=\"_blank\" rel=\"nofollow noopener\">EBS<\/a><\/td>\r\n<\/tr>\r\n<tr valign=\"middle\">\r\n  <td style=\"width:300px; min-width:300px;\"><strong><em>Plumbing Engineer<\/em><\/strong><\/td>\r\n  <td><a href=\"https:\/\/www.jaycocal.com\/index.html\" target=\"_blank\" rel=\"nofollow noopener\">Jaycocal Engineering<\/a><\/td>\r\n<\/tr>\r\n<tr valign=\"middle\" bgcolor=\"#e8ebee\">\r\n  <td style=\"width:300px; min-width:300px;\"><strong><em>Dry Utility Consultant<\/em><\/strong><\/td>\r\n  <td><a href=\"https:\/\/www.e4design.com\/\" target=\"_blank\" rel=\"nofollow noopener\">E4 Utility Design<\/a><\/td>\r\n<\/tr>\r\n<tr valign=\"middle\">\r\n  <td style=\"width:300px; min-width:300px;\"><strong><em>Testing & Inspections<\/em><\/strong><\/td>\r\n  <td><a href=\"https:\/\/www.fenaghengineering.com\/contact-us\/\" target=\"_blank\" rel=\"nofollow noopener\">Fenagh Engineering & Testing<\/a><\/td>\r\n<\/tr>\r\n<\/tbody><\/table>\r\n"],"_project_summary":["field_6834b6f319d51"],"_yoast_wpseo_primary_category":[""],"_yoast_wpseo_primary_project-types":["169"],"_yoast_wpseo_content_score":["90"],"_yoast_wpseo_estimated-reading-time-minutes":["1"],"_elementor_edit_mode":[""],"_elementor_template_type":[""],"_elementor_data":[""],"_yoast_wpseo_metadesc":["Mission Hills Shopping Center is an existing 82,000 SF grocery-anchored shopping center located in the Mission Hills neighborhood of Los Angeles, CA."],"_wp_page_template":["default"],"_thumbnail_id":["5613"]},"author":{"name":"JR Riddle","link":"https:\/\/urbanone.com\/blog\/author\/jr"},"date":"Nov 4, 2025","dateGMT":"2025-11-04 20:41:26","modifiedDate":"2025-11-04 20:43:37","modifiedDateGMT":"2025-11-04 20:43:37","commentCount":"0","commentStatus":"closed","categories":{"coma":"Uncategorized","space":"Uncategorized"},"taxonomies":{"post_tag":"","project-types":"<a href='https:\/\/urbanone.com\/blog\/project-types\/retail' rel='project-types'>Retail<\/a>"},"readTime":{"min":0,"sec":21},"status":"publish","excerpt":"Mission Hills Shopping Center is an existing 82,000 SF grocery-anchored shopping center located in the Mission Hills neighborhood of Los Angeles, CA."},{"id":5605,"link":"https:\/\/urbanone.com\/project\/la-floresta","name":"la-floresta","thumbnail":{"url":"https:\/\/urbanone.com\/wp-content\/uploads\/2025\/11\/La-Floresta-Retail.jpg","alt":"The Village at La Floresta was an new 87,000 SF shopping center development located Brea, CA."},"title":"The Village at La Floresta","postMeta":{"_edit_lock":["1762288546:2"],"_thumbnail_id":["5606"],"_elementor_edit_mode":[""],"_elementor_template_type":[""],"_elementor_data":[""],"_edit_last":["2"],"subtitle":["Brea, CA"],"_subtitle":["field_682d5eff2112f"],"project_summary":["<table cellspacing=\"0\" cellpadding=\"6\" width=\"100%\"><tbody>\r\n<tr valign=\"middle\" bgcolor=\"#e8ebee\">\r\n  <td style=\"width:300px; min-width:300px;\"><strong><em>Client<\/em><\/strong><\/td>\r\n  <td><a href=\"https:\/\/www.regencycenters.com\/\" target=\"_blank\" rel=\"nofollow noopener\">Regency Centers<\/a><\/td>\r\n<\/tr>\r\n<tr valign=\"middle\">\r\n  <td style=\"width:300px; min-width:300px;\"><strong><em>Location<\/em><\/strong><\/td>\r\n  <td><a href=\"https:\/\/en.wikipedia.org\/wiki\/Brea,_California\" target=\"_blank\" rel=\"nofollow noopener\">Brea, CA<\/a><\/td>\r\n<\/tr>\r\n<tr valign=\"middle\" bgcolor=\"#e8ebee\">\r\n  <td style=\"width:300px; min-width:300px;\"><strong><em>Category\/Emphasis<\/em><\/strong><\/td>\r\n  <td>Real Estate<\/td>\r\n<\/tr>\r\n<tr valign=\"middle\">\r\n  <td style=\"width:300px; min-width:300px;\"><strong><em>Services<\/em><\/strong><\/td>\r\n  <td><a href=\"\/services\/tenant-coordination\/\">Tenant Coordination<\/a><\/td>\r\n<\/tr>\r\n<tr valign=\"middle\" bgcolor=\"#e8ebee\">\r\n  <td style=\"width:300px; min-width:300px;\"><strong><em>Project Facts<\/em><\/strong><\/td>\r\n  <td>Tenant coordination for new retail and restaurant tenants at new 87,000 square foot shopping center development.<\/td>\r\n<\/tr>\r\n<tr valign=\"middle\">\r\n  <td style=\"width:300px; min-width:300px;\"><strong><em>Developer<\/em><\/strong><\/td>\r\n  <td><a href=\"https:\/\/www.regencycenters.com\/\" target=\"_blank\" rel=\"nofollow noopener\">Regency Centers<\/a><\/td>\r\n<\/tr>\r\n<tr valign=\"middle\" bgcolor=\"#e8ebee\">\r\n  <td style=\"width:300px; min-width:300px;\"><strong><em>Architect<\/em><\/strong><\/td>\r\n  <td><a href=\"https:\/\/www.aoarchitects.com\/\" target=\"_blank\" rel=\"nofollow noopener\">Architects Orange<\/a><\/td>\r\n<\/tr>\r\n<tr valign=\"middle\">\r\n  <td style=\"width:300px; min-width:300px;\"><strong><em>Civil Engineer<\/em><\/strong><\/td>\r\n  <td><a href=\"https:\/\/www.drc-eng.com\/\" target=\"_blank\" rel=\"nofollow noopener\">DRC Engineering<\/a><\/td>\r\n<\/tr>\r\n<tr valign=\"middle\" bgcolor=\"#e8ebee\">\r\n  <td style=\"width:300px; min-width:300px;\"><strong><em>Landscape Architect<\/em><\/strong><\/td>\r\n  <td><a href=\"https:\/\/www.lrmltd.com\/\" target=\"_blank\" rel=\"nofollow noopener\">LRM Ltd.<\/a><\/td>\r\n<\/tr>\r\n<tr valign=\"middle\">\r\n  <td style=\"width:300px; min-width:300px;\"><strong><em>General Contractor<\/em><\/strong><\/td>\r\n  <td><a href=\"https:\/\/lpj.com\/\" target=\"_blank\" rel=\"nofollow noopener\">Lyle Parks Jr. Construction<\/a><\/td>\r\n<\/tr>\r\n<tr valign=\"middle\" bgcolor=\"#e8ebee\">\r\n  <td style=\"width:300px; min-width:300px;\"><strong><em>Signage Contractor<\/em><\/strong><\/td>\r\n  <td><a href=\"https:\/\/signage-solutions.com\/\" target=\"_blank\" rel=\"nofollow noopener\">Signage Solutions<\/a><\/td>\r\n<\/tr>\r\n<tr valign=\"middle\">\r\n  <td style=\"width:300px; min-width:300px;\"><strong><em>Structural Engineer<\/em><\/strong><\/td>\r\n  <td><a href=\"https:\/\/www.petrastructural.com\/\" target=\"_blank\" rel=\"nofollow noopener\">Petra Structural Engineers<\/a><\/td>\r\n<\/tr>\r\n<tr valign=\"middle\" bgcolor=\"#e8ebee\">\r\n  <td style=\"width:300px; min-width:300px;\"><strong><em>Geotechnical Engineer<\/em><\/strong><\/td>\r\n  <td><a href=\"https:\/\/www.krazan.com\/site\/\" target=\"_blank\" rel=\"nofollow noopener\">Krazan & Associates<\/a><\/td>\r\n<\/tr>\r\n<tr valign=\"middle\">\r\n  <td style=\"width:300px; min-width:300px;\"><strong><em>Mechanical Engineer<\/em><\/strong><\/td>\r\n  <td><a href=\"https:\/\/pocockdesignsolutions.com\/\" target=\"_blank\" rel=\"nofollow noopener\">Pocock Design Solutions<\/a><\/td>\r\n<\/tr>\r\n<tr valign=\"middle\" bgcolor=\"#e8ebee\">\r\n  <td style=\"width:300px; min-width:300px;\"><strong><em>Electrical Engineer<\/em><\/strong><\/td>\r\n  <td>Michael Wall Engineering<\/td>\r\n<\/tr>\r\n<tr valign=\"middle\">\r\n  <td style=\"width:300px; min-width:300px;\"><strong><em>Plumbing Engineer<\/em><\/strong><\/td>\r\n  <td><a href=\"https:\/\/pocockdesignsolutions.com\/\" target=\"_blank\" rel=\"nofollow noopener\">Pocock Design Solutions<\/a><\/td>\r\n<\/tr>\r\n<tr valign=\"middle\" bgcolor=\"#e8ebee\">\r\n  <td style=\"width:300px; min-width:300px;\"><strong><em>Dry Utility Consultant<\/em><\/strong><\/td>\r\n  <td>N\/A<\/td>\r\n<\/tr>\r\n<tr valign=\"middle\">\r\n  <td style=\"width:300px; min-width:300px;\"><strong><em>Testing & Inspections<\/em><\/strong><\/td>\r\n  <td><a href=\"https:\/\/www.krazan.com\/site\/\" target=\"_blank\" rel=\"nofollow noopener\">Krazan & Associates<\/a><\/td>\r\n<\/tr>\r\n<\/tbody><\/table>\r\n"],"_project_summary":["field_6834b6f319d51"],"_yoast_wpseo_primary_category":[""],"_yoast_wpseo_primary_project-types":[""],"_yoast_wpseo_metadesc":["The Village at La Floresta was an new 87,000 SF shopping center development located Brea, CA."],"_yoast_wpseo_content_score":["90"],"_yoast_wpseo_estimated-reading-time-minutes":["1"],"_wp_page_template":["default"]},"author":{"name":"JR Riddle","link":"https:\/\/urbanone.com\/blog\/author\/jr"},"date":"Nov 4, 2025","dateGMT":"2025-11-04 20:24:31","modifiedDate":"2025-11-04 20:34:42","modifiedDateGMT":"2025-11-04 20:34:42","commentCount":"0","commentStatus":"closed","categories":{"coma":"Uncategorized","space":"Uncategorized"},"taxonomies":{"post_tag":"","project-types":"<a href='https:\/\/urbanone.com\/blog\/project-types\/retail' rel='project-types'>Retail<\/a>"},"readTime":{"min":0,"sec":15},"status":"publish","excerpt":"The Village at La Floresta was an new 87,000 SF shopping center development located Brea, CA."},{"id":5601,"link":"https:\/\/urbanone.com\/project\/carlsbad-village","name":"carlsbad-village","thumbnail":{"url":"https:\/\/urbanone.com\/wp-content\/uploads\/2025\/11\/Carlsbad-Village.jpg","alt":"Carlsbad Village"},"title":"Carlsbad Village","postMeta":{"_edit_lock":["1762287638:2"],"_elementor_edit_mode":[""],"_elementor_template_type":[""],"_elementor_data":[""],"_edit_last":["2"],"subtitle":["Carlsbad, CA"],"_subtitle":["field_682d5eff2112f"],"project_summary":["<table cellspacing=\"0\" cellpadding=\"6\" width=\"100%\"><tbody>\r\n<tr valign=\"middle\" bgcolor=\"#e8ebee\">\r\n  <td style=\"width:300px; min-width:300px;\"><strong><em>Client<\/em><\/strong><\/td>\r\n  <td><a href=\"https:\/\/balboaretail.com\/\" target=\"_blank\" rel=\"nofollow noopener\">Balboa Retail Partners<\/a><\/td>\r\n<\/tr>\r\n<tr valign=\"middle\">\r\n  <td style=\"width:300px; min-width:300px;\"><strong><em>Location<\/em><\/strong><\/td>\r\n  <td><a href=\"https:\/\/en.wikipedia.org\/wiki\/Carlsbad,_California\" target=\"_blank\" rel=\"nofollow noopener\">Carlsbad, CA<\/a><\/td>\r\n<\/tr>\r\n<tr valign=\"middle\" bgcolor=\"#e8ebee\">\r\n  <td style=\"width:300px; min-width:300px;\"><strong><em>Category\/Emphasis<\/em><\/strong><\/td>\r\n  <td>Real Estate<\/td>\r\n<\/tr>\r\n<tr valign=\"middle\">\r\n  <td style=\"width:300px; min-width:300px;\"><strong><em>Services<\/em><\/strong><\/td>\r\n  <td><a href=\"\/services\/construction-oversight\">Construction Oversight<\/a><\/td>\r\n<\/tr>\r\n<tr valign=\"middle\" bgcolor=\"#e8ebee\">\r\n  <td style=\"width:300px; min-width:300px;\"><strong><em>Project Facts<\/em><\/strong><\/td>\r\n  <td>Redemising and turnkey tenant improvement buildout of 2,700 square foot space for tenant relocation within a 59,000 square foot shopping center<\/td>\r\n<\/tr>\r\n<tr valign=\"middle\">\r\n  <td style=\"width:300px; min-width:300px;\"><strong><em>Developer<\/em><\/strong><\/td>\r\n  <td><a href=\"https:\/\/balboaretail.com\/\" target=\"_blank\" rel=\"nofollow noopener\">Balboa Retail Partners<\/a><\/td>\r\n<\/tr>\r\n<tr valign=\"middle\" bgcolor=\"#e8ebee\">\r\n  <td style=\"width:300px; min-width:300px;\"><strong><em>Architect<\/em><\/strong><\/td>\r\n  <td><a href=\"https:\/\/bakerarchitecture.com\/\" target=\"_blank\" rel=\"nofollow noopener\">Baker Architecture<\/a><\/td>\r\n<\/tr>\r\n<tr valign=\"middle\">\r\n  <td style=\"width:300px; min-width:300px;\"><strong><em>Civil Engineer<\/em><\/strong><\/td>\r\n  <td>N\/A<\/td>\r\n<\/tr>\r\n<tr valign=\"middle\" bgcolor=\"#e8ebee\">\r\n  <td style=\"width:300px; min-width:300px;\"><strong><em>Landscape Architect<\/em><\/strong><\/td>\r\n  <td>N\/A<\/td>\r\n<\/tr>\r\n<tr valign=\"middle\">\r\n  <td style=\"width:300px; min-width:300px;\"><strong><em>General Contractor<\/em><\/strong><\/td>\r\n  <td><a href=\"https:\/\/www.whiteconstructioninc.com\/\" target=\"_blank\" rel=\"nofollow noopener\">White Construction<\/a><\/td>\r\n<\/tr>\r\n<tr valign=\"middle\" bgcolor=\"#e8ebee\">\r\n  <td style=\"width:300px; min-width:300px;\"><strong><em>Signage Contractor<\/em><\/strong><\/td>\r\n  <td>N\/A<\/td>\r\n<\/tr>\r\n<tr valign=\"middle\">\r\n  <td style=\"width:300px; min-width:300px;\"><strong><em>Structural Engineer<\/em><\/strong><\/td>\r\n  <td><a href=\"https:\/\/doddandassociatesengineering.com\/index.html\" target=\"_blank\" rel=\"nofollow noopener\">Dodd & Associates<\/a><\/td>\r\n<\/tr>\r\n<tr valign=\"middle\" bgcolor=\"#e8ebee\">\r\n  <td style=\"width:300px; min-width:300px;\"><strong><em>Geotechnical Engineer<\/em><\/strong><\/td>\r\n  <td>N\/A<\/td>\r\n<\/tr>\r\n<tr valign=\"middle\">\r\n  <td style=\"width:300px; min-width:300px;\"><strong><em>Mechanical Engineer<\/em><\/strong><\/td>\r\n  <td><a href=\"https:\/\/bakerarchitecture.com\/\" target=\"_blank\" rel=\"nofollow noopener\">Baker Architecture<\/a><\/td>\r\n<\/tr>\r\n<tr valign=\"middle\" bgcolor=\"#e8ebee\">\r\n  <td style=\"width:300px; min-width:300px;\"><strong><em>Electrical Engineer<\/em><\/strong><\/td>\r\n  <td><a href=\"https:\/\/bakerarchitecture.com\/\" target=\"_blank\" rel=\"nofollow noopener\">Baker Architecture<\/a><\/td>\r\n<\/tr>\r\n<tr valign=\"middle\">\r\n  <td style=\"width:300px; min-width:300px;\"><strong><em>Plumbing Engineer<\/em><\/strong><\/td>\r\n  <td><a href=\"https:\/\/bakerarchitecture.com\/\" target=\"_blank\" rel=\"nofollow noopener\">Baker Architecture<\/a><\/td>\r\n<\/tr>\r\n<tr valign=\"middle\" bgcolor=\"#e8ebee\">\r\n  <td style=\"width:300px; min-width:300px;\"><strong><em>Dry Utility Consultant<\/em><\/strong><\/td>\r\n  <td>N\/A<\/td>\r\n<\/tr>\r\n<tr valign=\"middle\">\r\n  <td style=\"width:300px; min-width:300px;\"><strong><em>Testing & Inspections<\/em><\/strong><\/td>\r\n  <td>N\/A<\/td>\r\n<\/tr>\r\n<\/tbody><\/table>\r\n"],"_project_summary":["field_6834b6f319d51"],"_yoast_wpseo_primary_category":[""],"_yoast_wpseo_primary_project-types":["169"],"_yoast_wpseo_content_score":["90"],"_yoast_wpseo_estimated-reading-time-minutes":["1"],"_yoast_wpseo_focuskw":["Carlsbad Village"],"_yoast_wpseo_metadesc":["Carlsbad Village is an existing 59,000 SF grocery-anchored shopping center located in Carlsbad, CA."],"_yoast_wpseo_linkdex":["63"],"_wp_page_template":["default"],"_thumbnail_id":["5600"]},"author":{"name":"JR Riddle","link":"https:\/\/urbanone.com\/blog\/author\/jr"},"date":"Nov 4, 2025","dateGMT":"2025-11-04 20:19:10","modifiedDate":"2025-11-04 20:20:08","modifiedDateGMT":"2025-11-04 20:20:08","commentCount":"0","commentStatus":"closed","categories":{"coma":"Uncategorized","space":"Uncategorized"},"taxonomies":{"post_tag":"","project-types":"<a href='https:\/\/urbanone.com\/blog\/project-types\/retail' rel='project-types'>Retail<\/a>"},"readTime":{"min":0,"sec":23},"status":"publish","excerpt":"Carlsbad Village is an existing 59,000 SF grocery-anchored shopping center located in Carlsbad, CA."}]