At Urban One, we understand that successful retail developments are more than just spaces for shopping – they are destinations that bring people together, strengthen neighborhoods, and enhance urban vitality. Our retail projects range from adaptive reuse and infill redevelopments to large-scale shopping centers and mixed-use environments.
In this archive, you’ll find a collection of retail projects we’ve delivered across California, each showcasing our expertise in Construction Management, Predevelopment Consulting, Project Management, and more. Whether revitalizing an existing property or building a new anchor for community activity, our work emphasizes design excellence, financial feasibility, and long-term value creation.
Here are some examples of Retail projects completed by Urban One:

USC Village
USC Village was a student housing, retail and restaurant mixed-use development located adjacent to the University of Southern California (USC) campus, located in Los Angeles, CA.
Read More
The Ranch
The Ranch @ Hollywood & Verdugo is an existing 86,000 SF grocery and pharmacy-anchored shopping center located in Burbank, CA.
Read More
San Ysidro Village
San Ysidro Village is an existing 87,000 SF grocery-anchored shopping center located in Sunnyvale, CA.
Read More
Mission Hills
Mission Hills Shopping Center is an existing 82,000 SF grocery-anchored shopping center located in the Mission Hills neighborhood of Los Angeles, CA.
Read More
The Village at La Floresta
The Village at La Floresta was an new 87,000 SF shopping center development located Brea, CA.
Read More
Carlsbad Village
Carlsbad Village is an existing 59,000 SF grocery-anchored shopping center located in Carlsbad, CA.
Read More
Cala Center
Cala Center is an existing 69,000 SF grocery and pharmacy-anchored shopping center located in Sunnyvale, CA
Read More
8016 W 3rd St
8016 W 3rd St is an existing 2,700 SF street retail building located in the Beverly Grove neighborhood of Los Angeles, CA.
Read More
Westlake Plaza
Westlake Plaza and Center was an existing 283,000 SF multiple grocery-anchored shopping center located in Thousand Oaks, CA.
Read More
Western & Venice
Western & Venicewasan existing 85,000SF multiple groceryand pharmacy-anchored shopping center located in the Harvard Heights neighborhood of Los Angeles, CA.
Read More
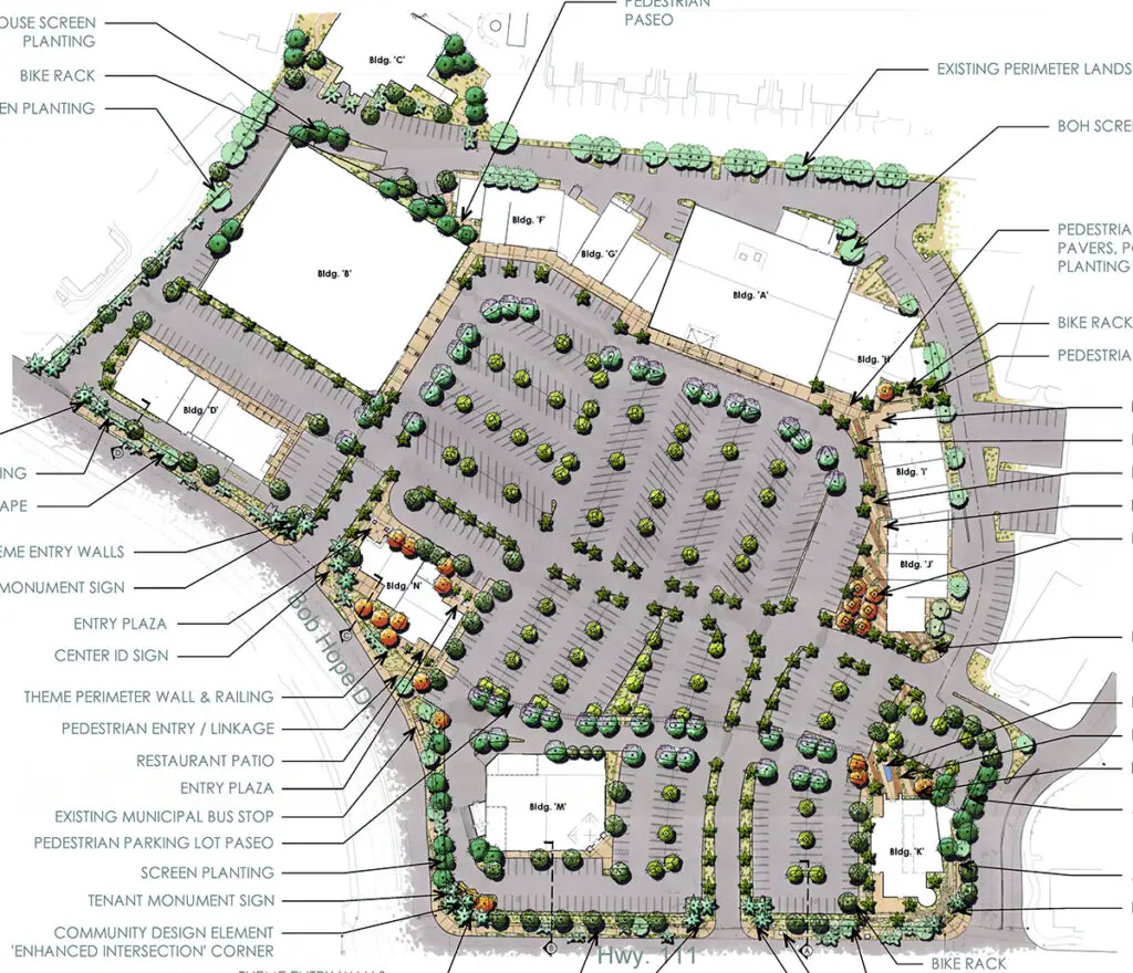
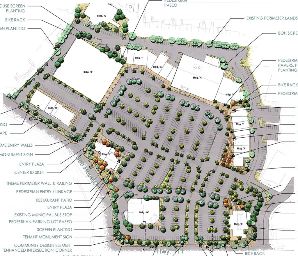
Rancho Las Palmas
Rancho Las Palmas is an existing 160,000 SF pharmacy-anchored shopping center located in Rancho Mirage, CA.
Read More
Plaza Hermosa
Plaza Hermosa is an existing 95,000 SF grocery and pharmacy-anchored shopping center located in Hermosa Beach, CA.
Read More
Juanita Tate Marketplace
Juanita Tate Marketplace was a ground-up 78,000 SF grocery and pharmacy-anchored shopping center located in South Central Los Angeles, CA.
Read More
Granada Village
Granada Village was an existing 225,000 SF multiple grocery and pharmacy-anchored shopping center located in the Granada Hills neighborhood of Los Angeles, CA.
Read More
Five Points Shopping Center
Five Points Shopping Center was an existing 189,000 SF grocery and pharmacy-anchored shopping center located in Santa Barbara, CA.
Read More
Hanna Ranch
Hanna Ranch was a planned 19-acre mixed-use development, consisting of a 116-room hotel, two 5,000 SF restaurant pads, 21,000 SF of office space and 33,000 SF of retail space, located in Novato, CA in Marin County.
Read More
